Качество, проверенное временем.
Качественная рабочая проектная документация с полным набором чертежей и расчетом стройматериалов для строительства.
Главная

Помощь с выбором проекта дома тел: +7 (926) 377-46-81. WhatsApp: +7 (926) 377-46-81.

Расширенный поиск проекта
Все проекты домов
Российские проекты
Зарубежные проекты
Проекты домов по категориям
Проекты строений
Авторизация покупателя
Логин:
Пароль:
Забыли свой пароль?
Профиль покупателя
Корзина0 позиций
на сумму 0 руб.


дома из кирпича дома из газобетона и пеноблоков деревянные дома
Проекты домов
из кирпича
Проекты домов
из газобетона
Проекты
деревянных домов
Сравнение товаров: 0 товаров
Ваша корзина пуста
Рассчитать смету Печать Добавить в избранное Удалить из избранного 0

Проект дома с сауной ЯУ 254-8, 150,0 кв.м

38 000 руб.


Проект дома  ЯУ 254-8

Кликните для увеличенияКликните для увеличенияКликните для увеличенияКликните для увеличения

Кликните для увеличения
Кликните для увеличения
Кликните для увеличения
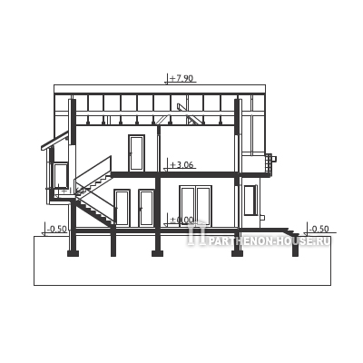
Описание: Коллекция проектов домов 2010 года. Технология строительства дома из газобетонных блоков. Проект дома с сауной. Плюсы: жилая комната на первом этаже, большая ванная с сауной на втором этаже, газовая котельная, просторная терраса в сторону сада, две спальни с выходом на большой балкон, гостиная с камином, большая кухня-столовая. Максимальное количество жильцов: 5 человек.
Камин: да.
Гараж: нет.
Площадь общая: 254,8 кв.м.
Площадь нетто: 150,0 кв.м.
Площадь жилая: 118,8 кв.м.

Крыша:
Площадь крыши: 173,6 кв.м.
Угол наклона крыши: 40,0°, 0,0°.

Технология и конструкция: газобетонные блоки.
Наружные стены: газобетонные блоки.
Перекрытие: железобетонное.
Конструкция крыши: деревянная.
Чистовое покрытие крыши: черепица.
Фундамент: ленточный монолитный ж/б.

Отопление: газовый котел.

Габаритные размеры дома: 11,8 х 9,4 х 7,90 м.
Минимальные размеры участка: 18,0 х 16,0 м.
Зеркальная проекция: да.
Проект в другой технологии строительства: нет.
ПРИМЕЧАНИЕ: Подготовка проектной документации: 5 рабочих дней.

Варианты проекта дома ЯУ 254-8

проект дома проект дома проект дома
Проект дома К 381-2
Проект дома Я 324-5
Проект дома Я 326-8-4

проект дома проект дома проект дома
Проект дома Я 376-7
Проект дома Я 295-0-4
Проект дома Я 295-0-5

проект дома проект дома проект дома
Проект дома Я 329-3
Проект дома С 293-9-3
Проект дома ЯУ 324-0

проект дома
Проект дома Я 376-7-2



Предложение Товар/Услуга
СТРОИТЕЛЬСТВО Калькулятор стоимости материалов ➤
БЕСПЛАТНО Экспресс-доставка проектов во все регионы России бесплатно!
ЦЕНЫ Мы не посредники и не перепродаем проекты по завышенным ценам. Обратившись к нам вы сможете напрямую заключить договор на приобретение готового проекта дома или индивидуальное проектирование непосредственно с архитекторами авторами проектной документации и по ценам, которые они предлагают.
ПОДАРКИ При покупке любого проекта серий ДС и ДСГ мы дарим вам проект бани ДС 34-6.

Стоимость проекта: 38 000 руб.
Архитектурный паспорт проекта: 2 000 руб.
Заказать дополнительную копию проекта:
НЕ заказывать копию проекта:  
1 копия проекта: 2 000 руб.
2 копии проекта: 3 500 руб.
Выбрать проекцию дома:
Проект: прямая проекция  
Проект: зеркальная проекция  

По вопросам консультации или приобретения проектной документации по этому проекту просьба звонить по телефону:
+7 926-377-46-81

 


Ознакомиться с составом проектной документации и терминологией!

Проект дома Сроки Экспресс-Доставки Вашего заказа "от двери до двери" по России
Москва, Санкт-Петербург, Орел, Белгород, Рязань, Курск, Нижний Новгород, Казань, Ярославль, Калуга, Иваново 1 день
Калининград, Архангельск, Краснодар, Ростов-на-Дону, Астрахань, Волгоград, Самара, Саратов, Екатеринбург, Новосибирск, Омск, Томск, Сургут, Тюмень, Новый Уренгой, Ханты-Мансийск, Барнаул, Челябинск, Пермь, Красноярск, Ижевск, Уфа 2 дня
Хабаровск, Владивосток, Иркутск, Якутск, Улан-Удэ 3 дня
Салехард, Нерюнгри, Южно-Сахалинск, Абакан, Чита 4 дня
Доставка в страны СНГ 3 - 5
дней

Назад в раздел
 

Последние проекты
Дом с гаражом
ПА-278Н 278,18 кв.м
Дом с сауной
ПА-316Н 316,70 кв.м
Новые проекты
Новые проекты домов и коттеджей Новые проекты домов и коттеджей
Архив новые проекты
домов и коттеджей
Проект месяца
Лучший проект месяца. Январь 2024г. Проект двухэтажного дома с гаражом ДС 244-9 Лучший проект месяца. Январь 2024г. Проект двухэтажного дома с гаражом ДС 244-9
Архив проект месяца
Проект дома с гаражом и баней ЯА 247-4
Определение площадей

Объявления

Мы оказываем помощь и даем грамотные и профессиональные консультации по подбору готовых проекты домов, коттеджей, бань, гаражей, бассейнов, беседок и других малоэтажных построек. В нашем каталоге также широко представлены проекты коммерческого назначения (мотели, магазины, автомойки). Мы оказываем свои услуги по всей России и странам СНГ. Проектная документация разработана в соответствии с действующими строительными нормами и правилами, принятыми в Российской Федерации и обеспечивает безопасную для жизни и здоровья людей эксплуатацию объекта при соблюдении предусмотренных рабочими чертежами мероприятий. Мы оказываем содействие не только в подборе готовых проектов домов самых лучших архитекторов России, но также можем помочь вам с индивидуальным проектированием по вашим эскизам. Кроме этих проектных работ, мы можем предложить и рекомендовать вам услуги надежных строительных компаний работающих в Московской области и других регионах России.

| Проекты домов | Пример проекта | Строительство | Все о стройке | Контакты | Мобильная версия | Политика конфиденциальности и обработки персональных данных |

https://www.parthenon-house.ru - готовые проекты домов, малоэтажное строительство России.
Разработка, дизайн и продвижение сайта - компания "ПАРФЕНОН" (2007-2025)
Мы на Одноклассниках Мы вконтакте